













В аренду сдается лабораторно-конструкторское помещение, 328,9 кв.м.
Предлагаем в аренду помещение 328,9 кв.м., на территории технопарка Калибр. Выполнена качественная отделка: напольное покрытие - коммерческий линолеум. Потолочная отделка типа Армстронг, стены качественная покраска.
НДС в размере 22% входит в указанную ставку. Дополнительно оплачивается отопление и электроэнергия.
Мы всегда идем навстречу нашим клиентам, поэтому готовы обсуждать индивидуальные варианты дисконта и арендных каникул. Позвоните и узнайте, что мы сможем предложить именно Вам!
Инфраструктура:
— Приточно-вытяжная вентиляция
— IP-телефония и высокоскоростной Интернет
— Пожарная и охранная сигнализация
— Круглосуточное видеонаблюдение территории
— Огороженная и охраняемая территория площадью 14гА
— Охрана периметра и входа в здание
— На территории расположены: банкоматы, кафе, конференц-залы, кофейни, фитнес-центр, медицинский кабинет, уличная спортивная площадка для игровых видов спорта.
Профессиональная управляющая компания обеспечивает арендаторов спектром услуг: клининговые услуги, услуги погрузки разгрузки, IТ услуги, а так же ремонтно-строительные работы.
Расположение:
В 7 мин. пешком от м.Алексеевская, район Останкинский, СВАО Москвы. Удобные подъезды к бизнес-центру со стороны Проспекта Мира и ТТК. Максимально удобное месторасположение, в тихом зеленом районе.
Парковка:
Собственная просторная и благоустроенная территория "Калибра", площадью более 14 Га, располагает вместительной парковой, рассчитанной более чем на 1000 машиномест с возможностью размещения грузового автотранспорта.
ПОКАЗ ПОМЕЩЕНИЙ: пн-пт с 9 до 17 часов. Любые вопросы можно задать по телефону или оставив заявку.
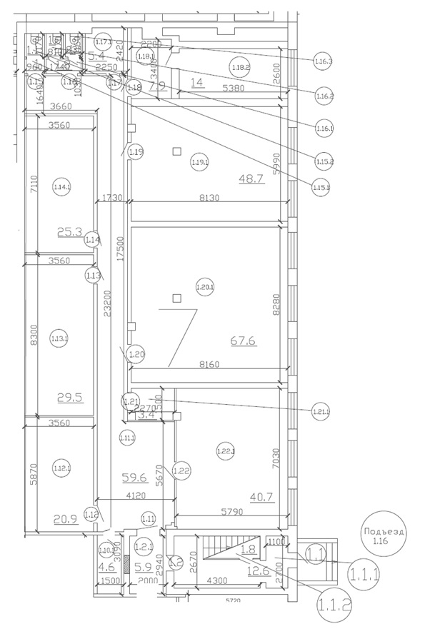
Планировка
Характеристики
- 1 этаж
- WC / уборная
- Высота потолков 3м.
- Охранная сигнализация
- Пожарная сигнализация
- Ремонт в помещении