








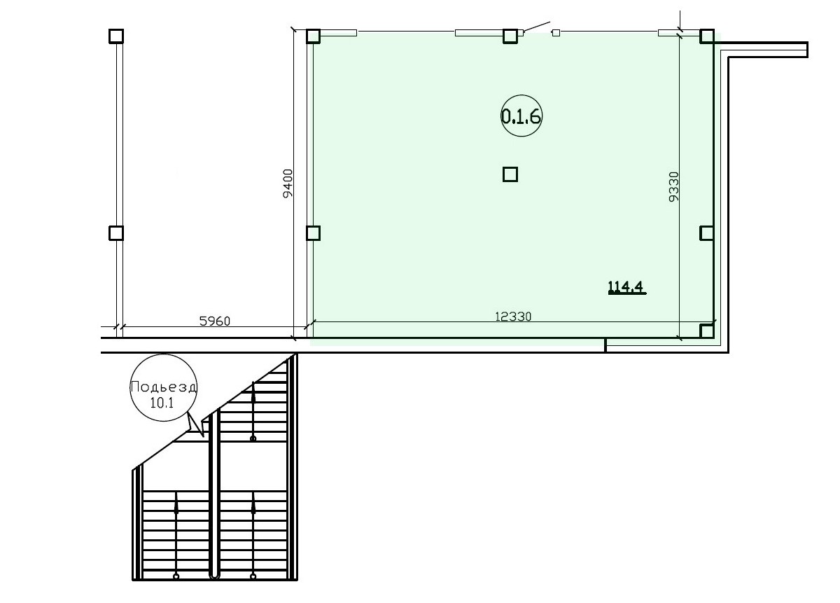
В аренду сдается теплый склад 114.4 кв.м.
Предлагаем в аренду 114.4 кв.м. под склад в отапливаемом помещении на 1 этаже бизнес-центра. Помещение оборудовано системами охранной и пожарной сигнализации. Вместительная парковка на территории.
НДС в размере 22% входит в указанную ставку. Дополнительно оплачивается отопление и электроэнергия.
Инфраструктура:
— Электрическая мощность 12 кВТ
— Круглосуточное видеонаблюдение территории
— Огороженная и охраняемая территория площадью 14гА
— Охрана периметра и входа в здание
— Пожарная и охранная сигнализация
— IP-телефония и высокоскоростной Интернет
— На территории расположены: банкоматы, кафе, конференц-залы, кофейни, медицинский кабинет, уличная спортивная площадка для игровых видов спорта.
Профессиональная управляющая компания обеспечивает арендаторов спектром услуг: клининговые услуги, услуги погрузки разгрузки, IТ услуги, а так же ремонтно-строительные работы.
Расположение:
В 7 мин. пешком от м.Алексеевская, район Останкинский, СВАО Москвы. Удобные подъезды к бизнес-центру со стороны Проспекта Мира и ТТК. Максимально удобное месторасположение, в тихом зеленом районе.
Парковка:
Собственная просторная и благоустроенная территория "Калибра", площадью более 14 Га, располагает вместительной парковой, рассчитанной более чем на 1000 машиномест с возможностью размещения грузового автотранспорта.
ПОКАЗ ПОМЕЩЕНИЙ: пн-пт с 9 до 17 часов. Любые вопросы можно задать по телефону или оставив заявку.
Планировка
Характеристики
- 1 этаж
- WC / уборная
- Отдельный вход
- Охранная сигнализация
- Подъезд фуры
- Пожарная сигнализация